Rif: IMMO-124857051
CUSANO MILANINO
MILANO
La soluzione proposta in vendita è ubicata in via Marconi, tutti i servizi e le attività commerciali che il Comune di Cusano Milanino offre ai residenti sono comodamente fruibili, così come sono facilmente raggiungibili le Ferrovie Nord, il servizio Autobus di ATM e le principali arterie automobilistiche per i collegamenti con Milano.
La palazzina nel corso degli anni è stata ristrutturata totalmente nelle parti comuni e si presenta in perfetto stato conservativo, dotata di ascensore videocitofono e di termo valvole per la contabilizzazione dell'impianto di riscaldamento centralizzato.
L'appartamento si presenta in buono stato conservativo per quanto riguarda i serramenti e l'aria condizionata, molto luminoso grazie al piano alto ed alla doppia esposizione.
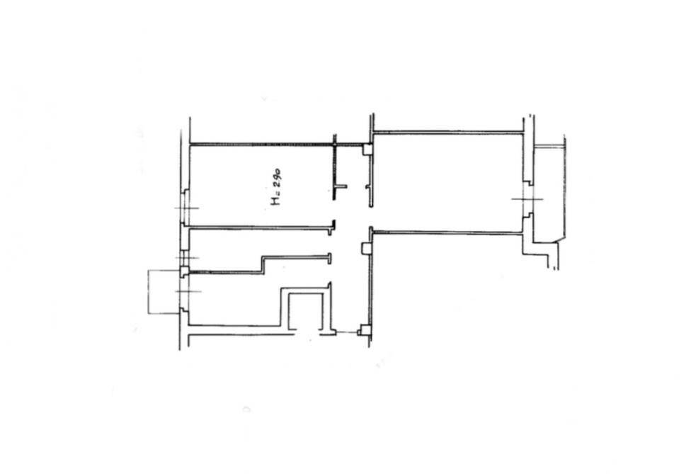
L' ingresso introduce all'ampio locale living con accesso al balcone che gode della piacevole vista sui graziosi giardini di Milanino. Ben defilata la zona cucina con accesso ad un secondo balcone di servizio. La camera da letto matrimoniale di generose dimensioni ed un ripostiglio
La cantina completa la proprietà.
La palazzina nel corso degli anni è stata ristrutturata totalmente nelle parti comuni e si presenta in perfetto stato conservativo, dotata di ascensore videocitofono e di termo valvole per la contabilizzazione dell'impianto di riscaldamento centralizzato.
L'appartamento si presenta in buono stato conservativo per quanto riguarda i serramenti e l'aria condizionata, molto luminoso grazie al piano alto ed alla doppia esposizione.
L' ingresso introduce all'ampio locale living con accesso al balcone che gode della piacevole vista sui graziosi giardini di Milanino. Ben defilata la zona cucina con accesso ad un secondo balcone di servizio. La camera da letto matrimoniale di generose dimensioni ed un ripostiglio
La cantina completa la proprietà.
Consistenze
| Descrizione | Superficie | Sup. comm. |
|---|---|---|
| Principali | ||
| Immobile - 4° piano | 69 Mq | 69 Mqc |
| Totale | 69 Mqc | |
